Hinweis: Aktuell keine Vermietung!

Wir bieten Ihnen attraktives Wohnen in Ottendorf-Okrilla. Hier wohnen Sie in einem ländlichen Wohnumfeld direkt neben der Landeshauptstadt Dresden.

Unsere voll sanierten 5-geschossigen Gebäude liegen äußerst verkehrsgünstig und bieten dennoch ein ruhiges von Grünflächen umgebenes Wohnumfeld. So erreichen Sie in einen Umkreis von 1 km Lebensmitteldiscounter, Baumarkt, Bäcker, Grund- und Mittelschule, Bücherei und Haltestelle vom ÖPNV (z.B. wochentags stündliche, direkte Zugverbindung nach Dresden); in einem Umkreis von 2 km Allgemeinarzt, Sparkasse, Apotheke, Gemeinde- verwaltung, die Auffahrt zur Autobahn (A 4) sowie ein schönes Waldgebiet. Der Kindergarten ist nur 2,5 km entfernt.

Zu jeder Wohnung wird ein Stellplatz in unmittelbarer Nähe für monatlich 10,00 € vermietet. Weitere Stellplätze sind auf einem nahe liegendem Parkplatz anmietbar.

Für Kinder ist einen Spielplatz und eine Wiese direkt im Wohngebiet vorhanden. Weiterhin bieten wir Ihnen die Sicherheiten die Ihnen nur eine Genossenschaft bieten kann.

Wir freuen uns darauf Ihnen unsere Wohnungen zu zeigen und bitten Sie wochentags unter der Rufnummer 035 205/ 710 94 einen Besichtigungstermin zu vereinbaren.

Wohnungen aus dem Bestand

Gartenstr. 29 a bis f - 3 RW - 62,43 m²
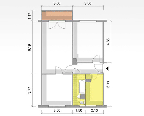
Gartenstr. 29 a bis f - 4 RW - 75,62 m²
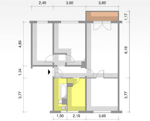
Gartenstr. 30 bis 32, 37 bis 40 - 3 RW - 65,44 m²
Gartenstr. 30 bis 32, 37 bis 40 - 4 RW - 76,04 m²